2019/20/21: “How the School rethinks the City”
prof. Paolo Carlotti; tutor. Silvia Aloisio; Coll.: Daria Belova, Maria Chiara Ferrone, ElhamHassani, Francesca Della de Rosa, Cinzia Paciolla, Alessandra Pusceddu, Francesco Tosetto.
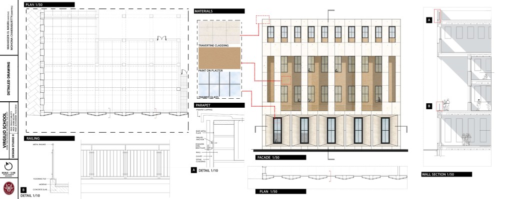
At the end of the master degree in Architecture, the Studio offers students the opportunity for an architectural design experimentation in the urban fabric. The course is placed at the last analytical-synthetic phase of the educational program, after they learned the notions of urban fabric and transformation process at the Design Studio 1 and at the Urban Morphology course. The project must be complementary to the complex urban system, defined by the paths, by the local and urban knots, which from the ‘contrada’ (neighborhood scale) extend up to the urban unit and to the whole metropolitan area. The Studio offers the opportunity to reinterpret the role and functions that the buildings must be able to perform at different scales (scale model). The project should be a synthetic, tectonic and expressive proposal and fully inserted in the sequence of transformations of the urban organism.
Theme/Topic of the year
The theme “How the School rethinks the City” is an invitation to think about and discuss the role of the School as tool for the design of the contemporary city. We identified two different project sites, one is located in the historical context and the other one in a modern urban fabric, both are characterized by the presence of an existing school building and an urban void in the proximity of it. The design programincludes the design of the extension of the existing school building and the proposal of some new mix-used buildings (edificispeciali), then the redesign of an urban space as a dialogue space, as well as the rethinking of paths and urban knots/nodality to compose a new masterplan for the area. The masterplan has to be developed in group of 4 people to improve buildings ad their functions that will have to be complementary in the present day settlement.










